Hi guys!
This is really starting to come along and the input is fantastic.
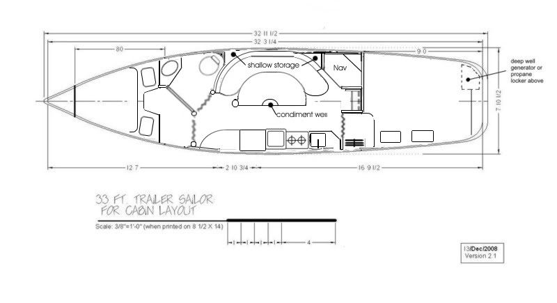
If I was looking to purchase this boat there are few things I would like to see. One would be a small seat next to the forward vee-berth. It provides a little more room in the forward cabin plus it allows a great place to sit and organize things and take your shoes on and off. It would be really nice if there was a storage or combo storage/hanging locker directly across from it.
The second issue is the nav station. You need to give some thought to this. This boat is and will remain capable of sailing offshore. She has done it for years. It has done quite a bit of ocean and big lake racing. With today's electronics, most navigation is done in the cockpit. However, it's not somewhere I want to be if the weather sours. Duane mentioned the easy appraoch is to use the galley table. It is definitely simple and very cost effective. However, if there is real estate available, it would be nice to see one. It doesn't have to be elaborate but it does have to be functional and not an afterthought.
I really appreciate all the pictures and drawings that have been posted. Russ...I really appreciate the one of the highway disaster. Great marketing material.
A couple of notes. I have mentioned on several occasions that the cockpit and transom have been completely re-designed and the tooling is finished. It dramatically changes the look and size of the cockpit. I have several photos of it that I forgot to bring home on my last trip. I will post them during my next trip. The reason why I bring this up is that the cockpit is actually much larger now. We will have the ability to take some of that increased length and give it to the cabin. I wish I could be more specific about how much but it is simply way too soon. I would estimate that we are talking about a minimum of 12 to 18" though. So you can push back the cabin entry by that amount if you want.
I have been in more boat building projects than I care to admit. But I have to admit, this has been the most fun and exciting. When all is said and done, this boat should have a tremendous amount of potential. Affordability, trailerability, livability, performance under sail and the ability to carry a moderate sized outboard off the transom that offers electric start, power tilt and remote controls. It's not a Mac or an Edge. It is a hybrid in a class all of it's own.
The hard part in all of this is deciding what color Hull #1 should be. I was looking at the gelcoat color chart yesterday and counted 233 different ones. The One Design racer will definitely be in Porsche red. I think Richard could have guessed that though.
Regards,
Art